Autotalli AT30KL PariOvella
Tuotekoodi: LPG0251314 EAN: 6424110251314
Autotalli AT30KL PariOvella
Tuotekoodi: LPG0251314 EAN: 6424110251314Lisävarusteet
Tuotekuvaus
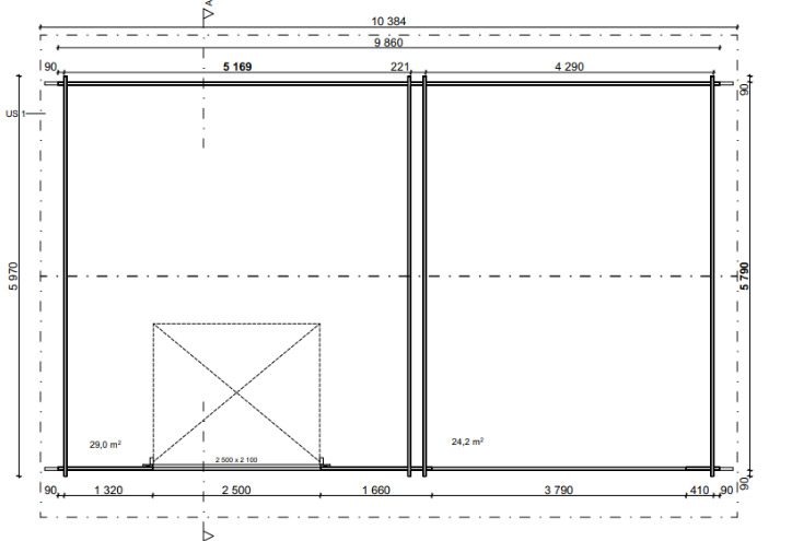
Autotalli AT30KL Hirsitalli Puuovilla. Talli 29,9m2 + Katos 24m2, Kevythirsi Tässä tallissa autosi on turvassa ja suojassa sään vaihteluilta. Talli sopii myös erinomaisesti varastoksi, talliksi mönkijälle, moottorikelkalle sekä puutarhavälineiden ja koneiden säilytykseen. Puinen hirsitalli on komea yksityiskohta kotipihallesi tai mökille. Hirsitalli toimitetaan puuosatoimituksena tilaamaasi osoitteeseen ja se on helppo kasata mukana tulevilla ohjeilla.
Tuotetiedot:Toimituspakettiin sisältyy:
Toimitus ei sisällä:
Suomalaiset, komeat, kestävät ja kätevät piharakennukset, hirsiladot, pihaladot, pihavarastot ja puuladot pihallesi tai mökille löydät meiltä.
Tuotepakkaus:
mitat: 120,0 cm (l) x 140,0 cm (k) x 600,0 cm (p)
paino: 3367,00 kg
Valmistusmaa: suomi
Piirrustukset
(231 KB, pdf)
Liittyvät tuotteet