Autotalli AT30L PariOvella
Tuotekoodi: LPG0251307 EAN: 6424110251307
Autotalli AT30L PariOvella
Tuotekoodi: LPG0251307 EAN: 6424110251307Lisävarusteet
Tuotekuvaus
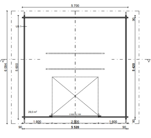
Autotalli AT30L Hirsitalli Puuovilla. 29,9m2, 5610x5420mm, Kevythirsi 42mm Tässä tallissa autosi on turvassa ja suojassa sään vaihteluilta. Talli sopii myös erinomaisesti varastoksi, talliksi mönkijälle, moottorikelkalle sekä puutarhavälineiden ja koneiden säilytykseen. Puinen hirsitalli on komea yksityiskohta kotipihallesi tai mökille. Hirsitalli toimitetaan puuosatoimituksena tilaamaasi osoitteeseen ja se on helppo kasata mukana tulevilla ohjeilla.
Tuotetiedot:Toimituspakettiin sisältyy:
Toimitus ei sisällä:
Suomalaiset, komeat, kestävät ja kätevät piharakennukset, hirsiladot, pihaladot, pihavarastot ja puuladot pihallesi tai mökille löydät meiltä.
Tuotepakkaus:
mitat: 120,0 cm (l) x 85,0 cm (k) x 600,0 cm (p)
paino: 1716,00 kg
Valmistusmaa: suomi
Piirrustukset
(166 KB, pdf)
Liittyvät tuotteet