
Hirsilato R-M Vino-Rakoseinä 10m2
Tuotekoodi: LPG0251109 EAN: 6424110251109Tuotekuvaus
Komea R-M Hirsilato sopii loistavasti varastoksi. Tämä piharakennus on suomalainen ja helppo kasata!
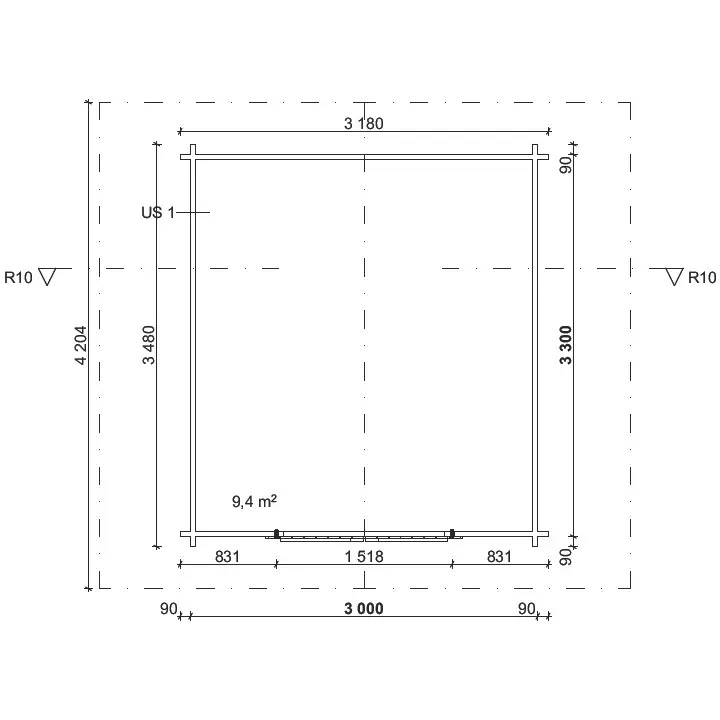
Hirsilato R-M on rakomallinen vino seinäinen 10 m2 piharakennus. Se sopii erinomaisesti varastoksi, puiden säilytykseen, heinille, puutarhavälineille, mönkijälle, moottorikelkalle, puutarhakoneille, polkupyörille sekä kausitavaravarastoksi. Pariovien ansiosta saat isotkin tavarat helposti suojaan pihalatoon. Pihalato toimitetaan puuosatoimituksena tilaamaasi osoitteeseen ja se on helppo kasata mukana tulevilla ohjeilla.
Toimitus ei sisällä vesikattolaudoitusta, vesikatemateriaalia, eikä lattiarakenteita (tilattava erikseen).
Suomalaiset, komeat, kestävät ja kätevät piharakennukset, hirsiladot, pihavarastot, pihaladot ja puuladot pihallesi tai mökille löydät meiltä.
Tuotetiedot:Toimitukseen sisältyy:
Toimituspaketti ei sisällä:
mitat: 120,0 cm (l) x 50,0 cm (k) x 410,0 cm (p)
paino: 943,00 kg
Valmistusmaa: suomi