
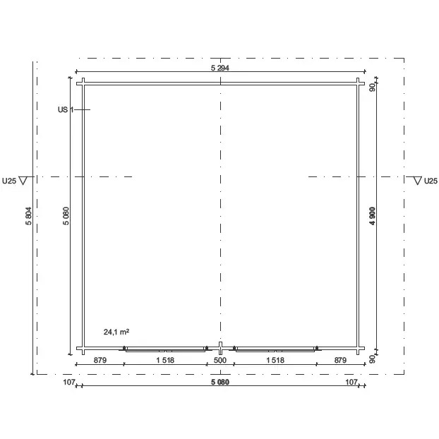
Hirsilato U-XXL Vino-Umpiseinä 25m2
Tuotekoodi: LPG0251086 EAN: 6424110251086Tuotekuvaus
Komea U-XXL Hirsilato sopii loistavasti varastoksi. Tämä piharakennus on suomalainen ja helppo kasata!
U-XXL on vino umpiseinäinen 25 m2 hirsilato. Se sopii erinomaisesti varastoksi, puiden säilytykseen, heinille, puutarhavälineille, mönkijälle, moottorikelkalle, puutarhakoneille, polkupyörille sekä kausitavaravarastoksi. Hirsiladon oviaukkoa suurentamalla ladosta voidaan tehdä vaikka grillikota. Kaksien pariovien ansiosta saat isotkin tavarat helposti suojaan pihalatoon. Pihalato toimitetaan puuosatoimituksena tilaamaasi osoitteeseen ja se on helppo kasata mukana tulevilla ohjeilla.
Toimitus ei sisällä vesikattolaudoitusta, vesikatemateriaalia, eikä lattiarakenteita (tilattava erikseen).
Suomalaiset, komeat, kestävät ja kätevät piharakennukset, hirsiladot, pihaladot, pihavarastot ja puuladot pihallesi tai mökille löydät meiltä.
Tuotetiedot:Toimituspakettiin sisältyy:
Toimitus ei sisällä:
mitat: 120,0 cm (l) x 65,0 cm (k) x 570,0 cm (p)
paino: 1981,00 kg
Valmistusmaa: suomi
